Omschrijving
Kenmerken
Overdracht
Indeling
Bouw
Energie
Video's
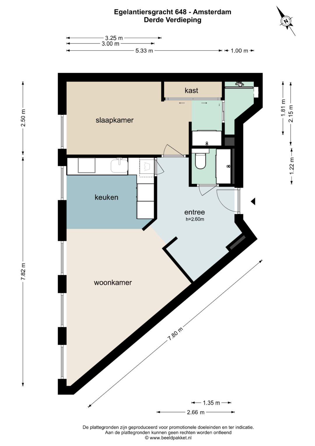
Plattegronden
Locatie
Zonnewijzer
Geen support
Enthousiast geworden?
Maak dan snel een afspraak voor een vrijblijvende bezichtiging van
Egelantiersgracht 648, Amsterdam

Bekijk ons overige aanbod
Interesse in de Egelantiersgracht 648?
Maak dan snel een afspraak voor een bezichtiging.











































